Immobilienbörse

Hier finden Sie Immobilien zur Miete und zum Kauf in unserer Kreisstadt. 
Die Liste ist sortiert nach m² und beginnt mit der kleinsten Fläche.

Das Formular zur Anmeldung Ihrer Immobilie für ein Inserat in unserer Immobilienbörse schicken Sie bitte an wirtschaftsfoerderung@tauberbischofsheim.de. Bitte fügen Sie 5 aussagekräftige Bilder im Querformat bei und wenn vorhanden, einen Lageplan.

Formular zur Anmeldung Ihrer Immobilie (PDF,214 KB)

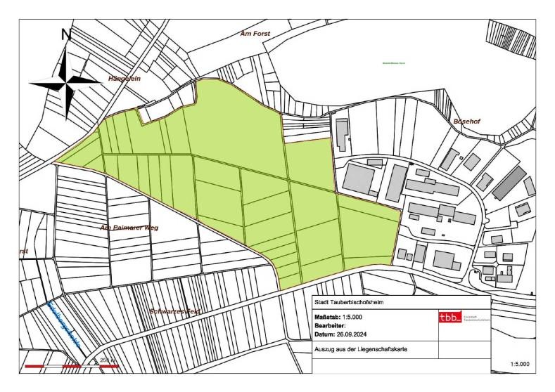
Großfläche zur Entwicklung durch Projektentwickler ca. 22 ha

Industriepark A81 Bauabschnitt II


Industriepark A81 Bauabschnitt II zur Projektentwicklung

Beschreibung

Der Bauabschnitt II des Industrieparks A81 soll ab 2025 vom Zweckverband A81 in Zusammenarbeit mit einem Projektentwickler erschlossen und entwickelt werden.

Haben Sie Interesse an einem Großprojekt, mit dem Ziel der Entwicklung von Gewerbe- und Industrieflächen? Kontaktieren Sie die Wirtschaftsförderung der Stadt Tauberbischofsheim.


Anschrift

Großfläche zur Entwicklung durch Projektentwickler ca. 22 ha, Industriepark A81 Bauabschnitt II
Industriepark A81
Falk-Müller-Straße

Makler

Name

Stadtverwaltung Tauberbischofsheim

Straße/Hausnummer

Marktplatz 8

PLZ/Ort

97941 Tauberbischofsheim

Telefon

09341 803-1020